
Beschreibung
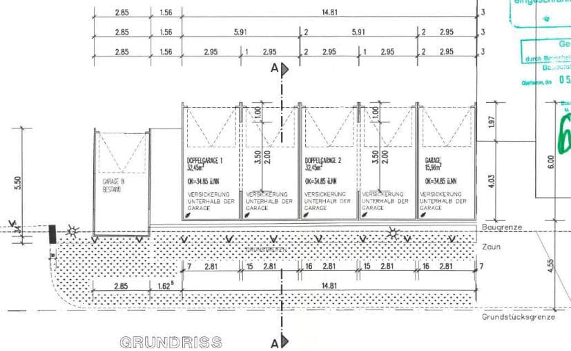
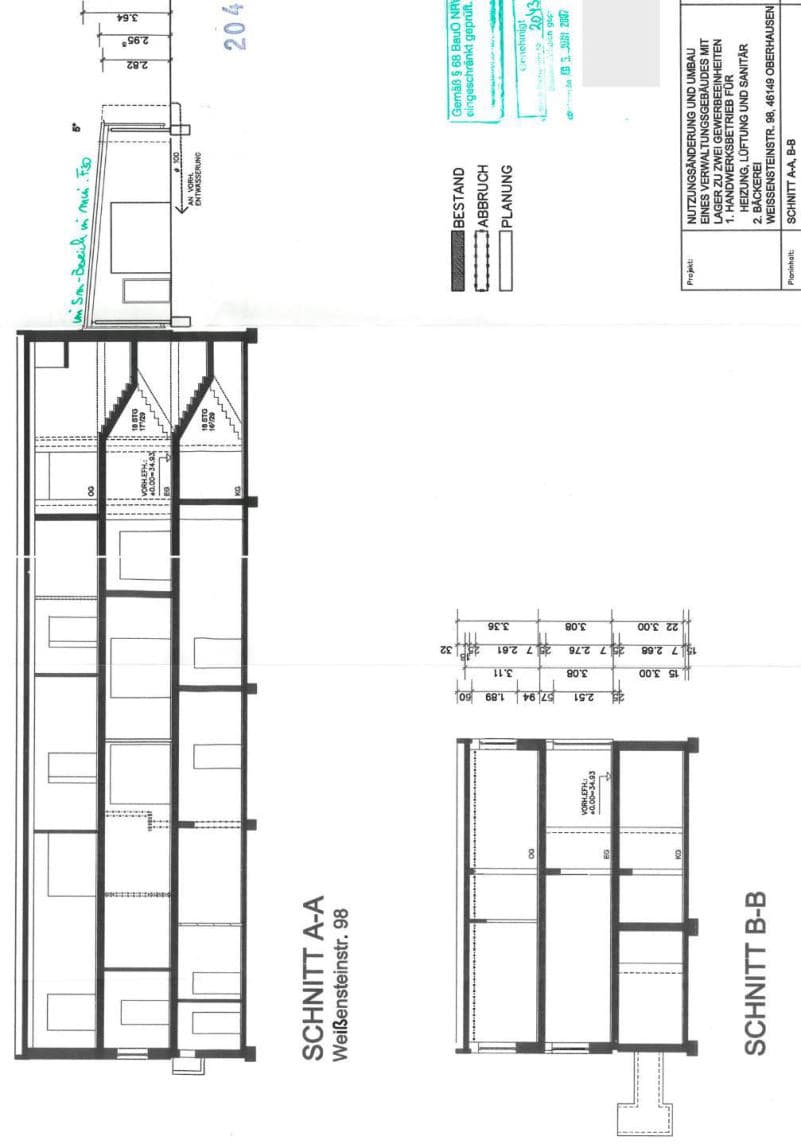
Laut Wertgutachten handelt es sich bei dem Sondereigentum Nr. 1 um eine ca. 559 qm große Gewerbeeinheit mit Flächen im Keller-, Erd- und Obergeschoss sowie dem Lagerhallenanbau. Der Einheit wurde das Sondernutzungsrecht „an der rechts vom Eingang des Gebäudes gelegenen Hoffläche sowie der Garage rechts der Zufahrt“ eingeräumt. Die Einheit verfügt im Obergeschoss über einen Büro- und Ausstellungsbereich, WC"s sowie einen Lagerbereich mit Luftschleuse und Filter. Die Sozialräume befinden sich im Kellergeschoss. Bei dem Sondereigentum Nr. 2 um eine ca. 320 qm große Gewerbeeinheit, welche 2006 zur Backstube umgenutzt wurde. Die Einheit verfügt im Erdgeschoss über Produktions- und Lagerräume. Im Kellergeschoss befinden sich die Sozialräume und ein großer Vorraum. Der Büroraum mit Nasszelle befindet sich im Obergeschoss. Die Garagenzeile sowie der hintere nördliche Teil der Hoffläche gehören zum Gemeinschaftseigentum. Der Verkehrswert wurde gemäß § 74a Abs. 5 ZVG wie folgt festgesetzt: Einzelwerte im Falle der Einzelversteigerung Gemarkung Sterkrade Blatt 15577, lfd. Nr. 1: 215.000,00 € Gemarkung Sterkrade Blatt 15578, lfd. Nr. 1: 112.000,00 €
Lage & Flurstücke
Weißensteinstraße 98, 46149 Oberhausen, Nordrhein-Westfalen