
Beschreibung
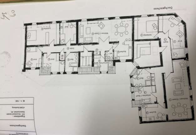
Das Gutachten bezieht sich auf eine ETW im Stadtteil Duisburg-Fahrn. Die Wohnung befindet sich in einem II-geschossigen Mehrfamilienhaus, das ursprünglich im Jahr 1906 errichtet wurde. Die Grundstücksgröße beträgt 717 m². Das aufstehende Gebäude besteht laut Aufteilungsplan aus sechs Einheiten, die zum Stichtag überwiegend unbewohnt waren. Die Bausubstanz ist baufällig. Eine Innenbesichtigung war zum Stichtag nicht möglich. Gemäß einem Vorgutachten aus dem Jahr 2022 sind die Gebäude im Inneren teilweise entkernt und befinden sich in einem rohbauähnlichen Zustand. Der erste äußere Eindruck spiegelt nicht den inneren Zustand der Gebäude wider. Einzelne Sondereigentumseinheiten sind in der Örtlichkeit teilweise nach dem Aufteilungsplan nicht mehr zu indentifizieren. Auch die gegenständliche Wohnung war zum Zeitpunkt des Vorgutachtens vollständig entkernt und in einem nicht nutzbaren Zustand. Eine Innenbesichtigung des Gebäudes war zum aktuellen Wertermittlungsstichtag nicht möglich. Die Wohnung gliedert sich gemäß Aufteilungsplan in 4 Zimmer, Küche, Diele, Bad, WC und Abstellraum. Betreibender Gläubiger ist eine Behörde, daher werden keine Kontaktdaten veröffentlicht. Kontoverbindung Sicherheitsleistung: ZZJ Hamm IBAN: DE08 3005 0000 0001 4748 16 LB Hessen-Thüringen, Verwendungszweck: AG Duisburg, Geschäftszeichen, Sicherheit, Datum der Versteigerung
Lage & Flurstücke
Keithstraße 2, Ziethenstraße 33, 47169 Duisburg, Fahrn, Nordrhein-Westfalen