
Beschreibung
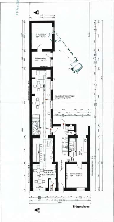
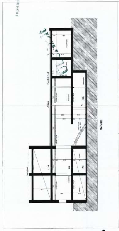
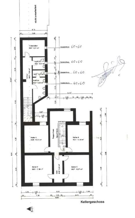
Es handelt sich um ein ca. 1912 in 47053 Duisburg-Hochfeld errichtetes, überwiegend zu Wohnzwecken genutztes Wohn- und Geschäftshaus mit Teilunterkellerung und ausgebautem Dachgeschoss. Die Grundstücksgröße beträgt 409 qm. Das Gebäude umfasst acht Einheiten. Die Besichtigungsmöglichkeiten waren stark eingeschränkt. Die Einheit im Erdgeschoss links mit Teilflächen im Keller ist gemäß der digitalen Bauakten der Stadt Duisburg zuletzt als gastronomische Fläche genehmigt. Zum Stichtag wurde die Fläche augenscheinlich zu Wohnzwecken genutzt. Das Gebäude erschien nur in Teilen bewohnt. Die Gesamtwohnfläche bemisst sich auf insgesamt ca. 254 qm und die gewerbliche Nutzfläche ohne Kellerräume auf ca. 70 qm. Das Gebäude vermittelte bereits im Rahmen der eingeschränkten Besichtigungsmöglichkeiten einen stark vernachlässigten Gesamteindruck. Der bauliche Allgemeinzustand ist mangelhaft bis desolat. Es besteht ein erheblicher Instandhaltungsstau. Kontaktdaten Gläubiger: Telefon 02051315-6553; Unser Zeichen: OE 921/Ha/1231893047/ Kontoverbindung Sicherheitsleistung: ZZJ Hamm IBAN: DE08 3005 0000 0001 4748 16 LB Hessen-Thüringen, Verwendungszweck: AG Duisburg, Geschäftszeichen, Sicherheit, Datum der Versteigerung
Lage & Flurstücke
Hochfeldstr. 6, 6a, 47053 Duisburg, Hochfeld, Nordrhein-Westfalen