
1 / 15
Beschreibung
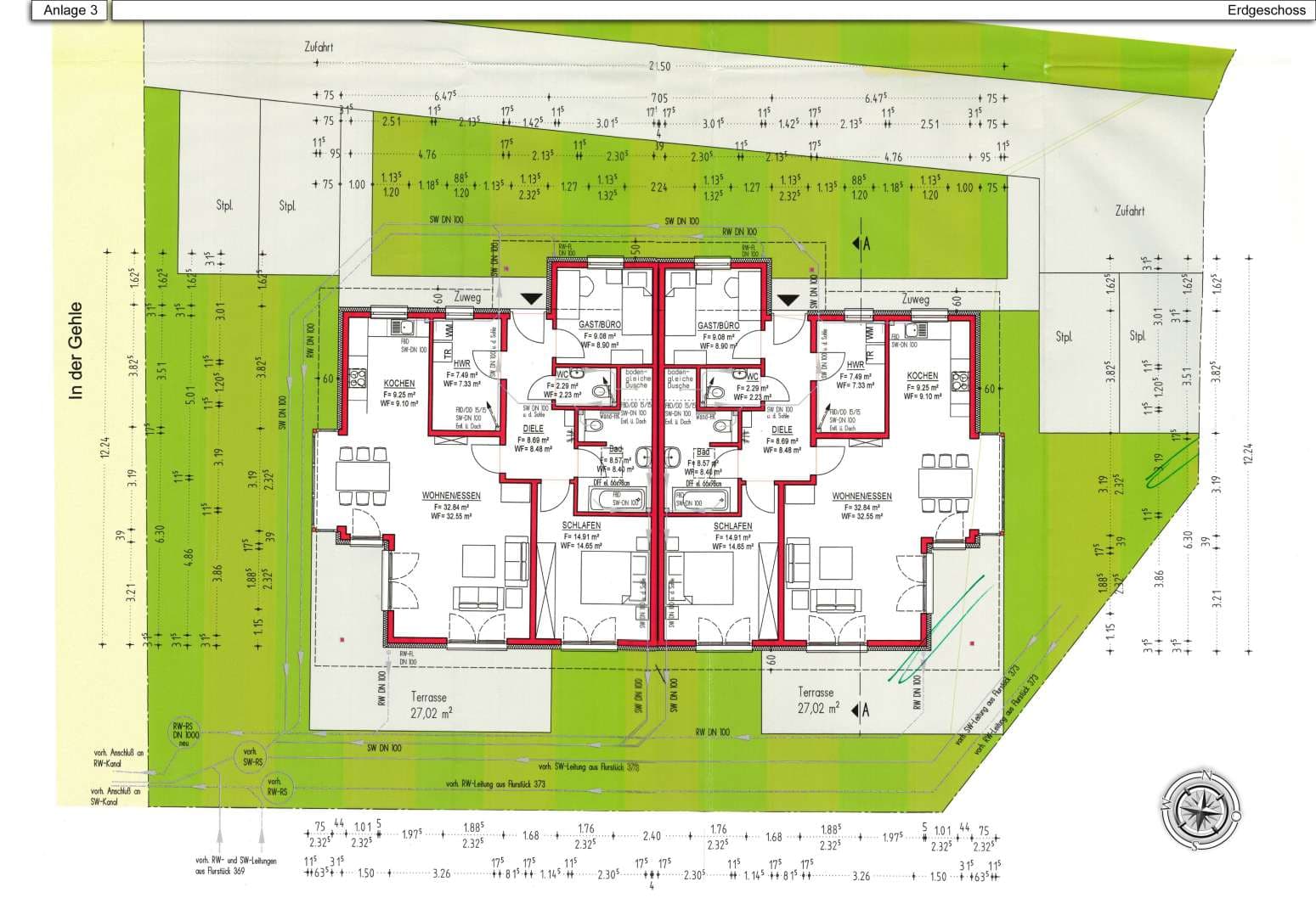
Laut Gutachten handelt es sich um ein in massivbauweise errichtetes, nicht unterkellertes Zweifamilienhaus (Doppelhaus) mit zwei Wohnungen mit je ca. 92 m² Wohnfläche zzgl. Terrasse; Baujahr 2019. Das Dachgeschoss ist nicht ausgebaut. Eine Altlast ist eingetragen. Eine Innenbesichtigung hat nicht stattgefunden.
Lage & Flurstücke
Keine Koordinaten verfügbar
In der Gehle 4a und 4b, 32584 Löhne, Mennighüffen, Nordrhein-Westfalen
Kostenrechner
Kostenrechner für Zwangsversteigerungen
Objektdaten
Verkehrswert:563.000 €
Bundesland:Nordrhein-Westfalen
Grunderwerbsteuer:6,5 %
Ihre Eingaben
€
€
Rechtlicher Hinweis: Diese Berechnung dient ausschließlich der Orientierung und stellt keine rechtliche, steuerliche oder finanzielle Beratung dar. Alle Angaben erfolgen ohne Gewähr. Für eine verbindliche Auskunft wenden Sie sich bitte an einen Rechtsanwalt, Steuerberater oder Ihre Bank.