
Beschreibung
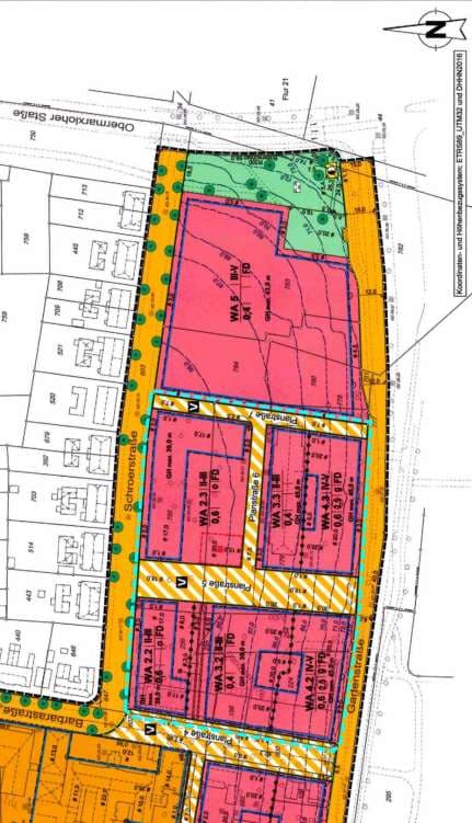
Laut Wertgutachten: Brachliegendes, mit Anlagen eines ehemaligen Krankenhausgebäudes bebautes Grundstück in 47167 Duisburg-Neumühl, Barbarastr. 68, 72, Schroerstr. 2, Ursula-Wölfel-Straße Bei dem Wertermittlungsobjekt handelt es sich um ein brachliegendes, überwiegend unbebautes Grundstück im Ortsteil Neumühl des Stadtbezirks Hamborn zwischen der Schroerstraße und der Gartenstraße. Im nordwestlichen Teil des Grundstücks befinden sich III bzw. I-geschossige bauliche Anlagen eines ehemaligen Krankenhausgebäudes (u. a. Schwesternheim) des unmittelbar angrenzenden leerstehenden St. Barbara-Hospitals. Auf Grund der Datenschutzbestimmungen kann eine Bekanntgabe der betreibenden Gläubiger nicht erfolgen. Dies geht nur mit vorheriger Zustimmung der Gläubiger. Diese Zustimmung liegt hier nicht vor. Kontoverbindung Sicherheitsleistung: ZZJ Hamm IBAN: DE08 3005 0000 0001 4748 16 LB Hessen-Thüringen, Verwendungszweck: AG Duisburg, Geschäftszeichen, Sicherheit, Datum der Versteigerung
Lage & Flurstücke
Barbarastraße 68, 72; Schroerstraße 2; Ursula-Wölfel-Straße, 47167 Duisburg, Neumühl, Nordrhein-Westfalen