
1 / 39
Beschreibung
Laut Gutachten beinhaltet das als Wohnungseigentum ausgestaltete Objekt (Bj. 1976/1977) sämtliche Einheiten des zweigeschossigen Wohn- und Geschäftshauses mit Ausnahme einer Apotheke. Im Einzelnen handelt es sich um vier Ladenlokale, zwei Praxen, zwei Wohnungen, ein Frisörgeschäft, sowie ein Büro (ehemalige Gaststätte). Ansprechpartner des betreibenden Gläubigers: KSK-Immobilien GmbH, Telefon 0 22 41/1 00-2 02.
Dokumente
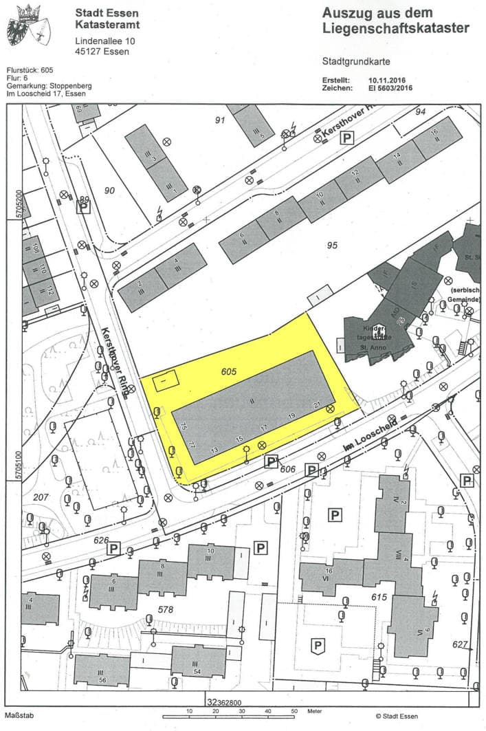
Lage & Flurstücke
Keine Koordinaten verfügbar
Kersthover Ring 75, 77, Im Looscheid 13, 15, 17, 19, 21, 00000 Essen, Nordrhein-Westfalen
Kostenrechner
Kostenrechner für Zwangsversteigerungen
Objektdaten
Verkehrswert:1.260.000 €
Bundesland:Nordrhein-Westfalen
Grunderwerbsteuer:6,5 %
Ihre Eingaben
€
€
Rechtlicher Hinweis: Diese Berechnung dient ausschließlich der Orientierung und stellt keine rechtliche, steuerliche oder finanzielle Beratung dar. Alle Angaben erfolgen ohne Gewähr. Für eine verbindliche Auskunft wenden Sie sich bitte an einen Rechtsanwalt, Steuerberater oder Ihre Bank.