
Beschreibung
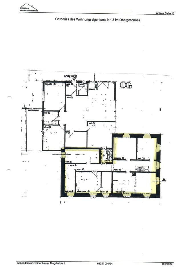
Laut Wertgutachten handelt es sich um Wohnungseigentum in einem überwiegend nicht unterkellerten, zweigeschossigen Mehrfamilienhaus mit 4 Wohneinheiten. Das DG ist nicht ausgebaut. Die Wohnfläche bestehend aus 4 Wohnräumen, Küche, 2 Bäder, 2 Flure und 1 Abstellraum beträgt ca. 136 qm sowie einer Nutzfläche von ca. 95 qm. Baujahr im Ursprung um 1891. Modernisierung bis 2022 PV-Anlage. Die Wasserversorgung erfolgt über einen Brunnen. Die Beheizung durch eine Öl-Zentralheizung. Feuchtigkeitsschäden in den Bädern und Kellerräumen sind vorhanden. Ein abgetrennter Teil von ca. 45 qm ist vermietet. Ansprechpartner für Bietinteressenten: Volksbank in Südwestfalen eG, zu 876635/SKM/m9, Tel.: 0271/ 2300-191
Lage & Flurstücke
Magdheide 1, 58553 Halver, Günenbaum, Nordrhein-Westfalen